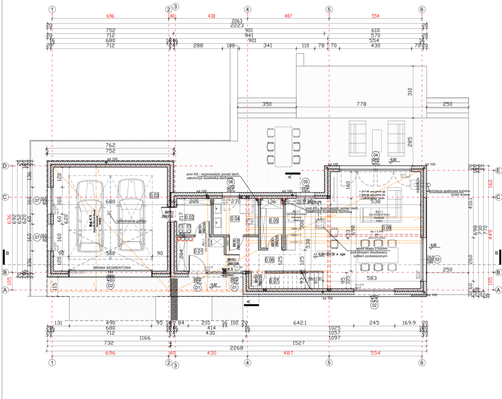
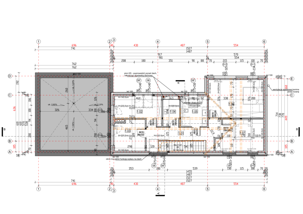
Nowoczesny dom w technologii szkieletowej
Projekt nowoczesnego domu jednorodzinnego, zrealizowany w technologii szkieletu drewnianego, to połączenie zrównoważonego budownictwa, energooszczędnych rozwiązań i współczesnej estetyki. Dom zaprojektowany został z myślą o komforcie codziennego życia, wysokiej efektywności energetycznej oraz harmonii z otaczającym krajobrazem.
dom drewniany
dom drewniany
dom drewniany
dom drewniany
dom drewniany
Nowoczesny projekt indywidualny
Bryła budynku wyróżnia się eleganckim połączeniem naturalnego drewna, grafitowego pokrycia dachowego oraz minimalistycznych betonowych akcentów. Rytmiczne pionowe deskowanie elewacji nadaje budynkowi lekkości i nowoczesnego charakteru. Duże przeszklenia otwierają wnętrza na ogród i taras, zapewniając doskonałe doświetlenie pomieszczeń.
W zgodzie z naturą
Dom został osadzony w malowniczym otoczeniu zieleni na działce z duzyn spadkiem terenu. Jego forma i funkcja zostały zaprojektowane tak, by wpisywać się w naturalne ukształtowanie terenu. Z tarasu rozciąga się widok na ogród z nasadzeniami ozdobnych traw i niskiej zieleni, tworząc idealne miejsce do relaksu i spotkań z bliskimi. W kuchni zaprojektowane duże okno dające wrażenie ramy obrazu- obrazu jakim jest piękny widok na las.






