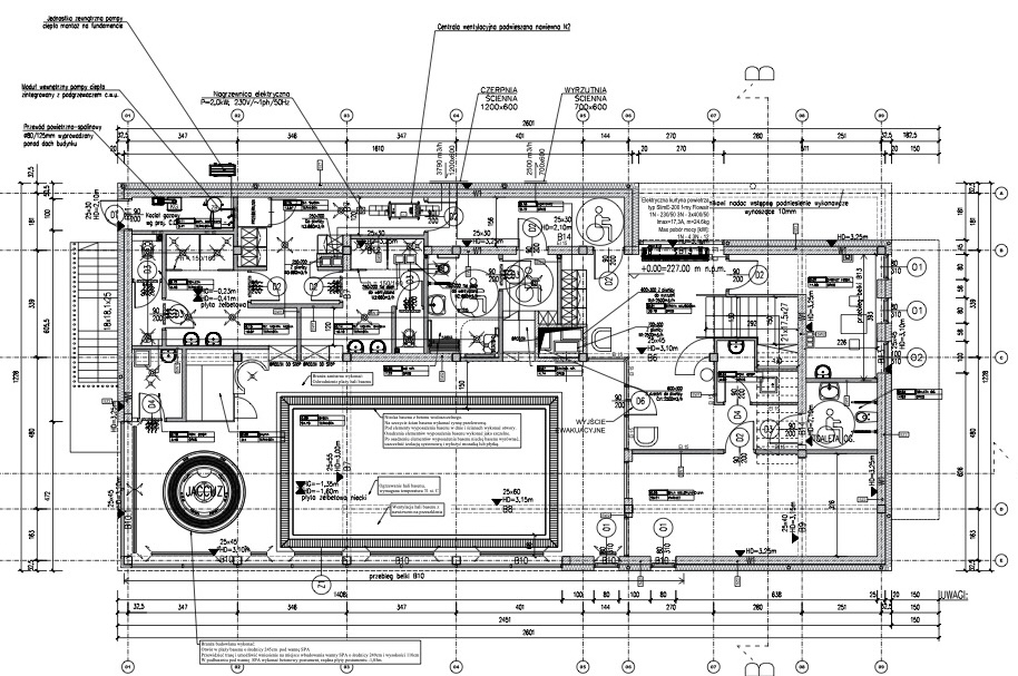
Strefa usługowa – parter:
Na poziomie parteru zaprojektowano strefę usługową z basenem rehabilitacyjnym, jacuzzi oraz pełnym zapleczem sanitarno-technicznym. Układ pomieszczeń został dostosowany do obowiązujących przepisów dotyczących dostępności dla osób z niepełnosprawnościami. Przestrzenie są funkcjonalne, a zastosowanie dużych przeszkleń pozwala na kontakt wnętrz z zielenią zewnętrzną, co sprzyja atmosferze relaksu i regeneracji.
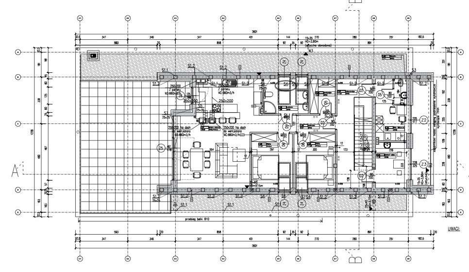
Część mieszkalna – piętro:
Na piętrze zaprojektowano w pełni niezależną część mieszkalną, złożoną z przestrzeni dziennej z kuchnią i jadalnią, dwóch sypialni oraz łazienki. Część dzienna została otwarta na taras z widokiem na otaczającą zieleń. Dzięki zastosowaniu dużego przeszklenia oraz wysokiego sufitu z odkrytą więźbą, wnętrze zyskało przestronny, nowoczesny charakter, zachowując przy tym przytulność dzięki zastosowanym materiałom – drewnu, naturalnemu kamieniowi i stonowanej kolorystyce.
Kluczowe cechy projektu:
-
basen rehabilitacyjny i strefa SPA na parterze
-
pełna dostępność dla osób z ograniczoną mobilnością
-
część mieszkalna na piętrze z oddzielnym wejściem i tarasem
-
maksymalne doświetlenie i otwarcie budynku na zieleń
-
wyraźny podział funkcji w zwartej, eleganckiej bryle








