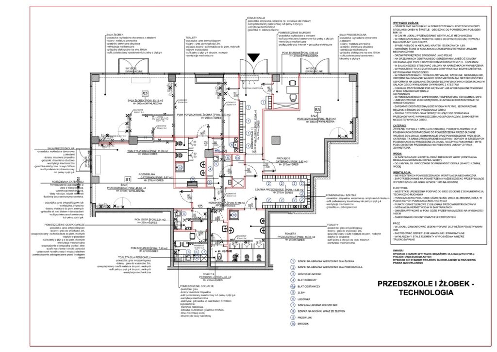
W ramach współpracy wykonałam kompleksowy projekt, obejmujący:
-
projekt funkcjonalny zgodny z wytycznymi GIS i przepisami oświatowymi,
-
aranżację wnętrz z podziałem na strefy (sale dydaktyczne, szatnia, toalety, pomieszczenia socjalne, kuchnia),
-
dobór kolorystyki, materiałów i wyposażenia dostosowanych do potrzeb dzieci,
-
opracowanie rysunków wykonawczych i zestawień materiałowych,
-
uzgodnienia projektu z rzeczoznawcą Sanepidu i rzeczoznawcą ds. PPoż,
-
opracowanie dokumentacji pomocnej przy odbiorach i rejestracji placówki.
Co trzeba było uzgodnić?
Projekt przedszkola to nie tylko funkcjonalny układ – to również spełnienie restrykcyjnych wymogów formalnych. W trakcie pracy nad projektem:
Uzgodniłam projekt z:
-
Rzeczoznawcą Sanepidu – zgodność z rozporządzeniem Ministra Edukacji oraz Ministra Zdrowia (m.in. minimalne metraże, wentylacja, dostępność wody, osobne strefy sanitarne dla dzieci i personelu),
-
Rzeczoznawcą ds. przeciwpożarowych – weryfikacja ewakuacji, klasy odporności ogniowej przegród, oznaczenia i wymagane wyposażenie (np. gaśnice, oświetlenie awaryjne),
-
W razie potrzeby: rzeczoznawcą BHP – przy zatrudnieniu personelu.
Projekt musiał spełniać m.in.:
-
Rozporządzenie Ministra Zdrowia w sprawie wymagań sanitarnych w placówkach dla dzieci,
-
Wytyczne GIS dotyczące przedszkoli i żłobków,
-
Warunki Techniczne 2022+,
-
Przepisy ochrony przeciwpożarowej budynków.
Realizacja
Współpraca obejmowała również wsparcie wykonawcze i konsultacje autorskie, tak by projekt został wiernie odwzorowany w rzeczywistości. Inwestor otrzymał komplet dokumentacji umożliwiającej odbiór Sanepidu i rejestrację placówki oświatowej


